Understanding Elevator Wire Rope Brakes Elevators are indispensable vertical transportation tools in modern buildings, and their safety has always been a crucial consideration in design and operation....
READ MORE











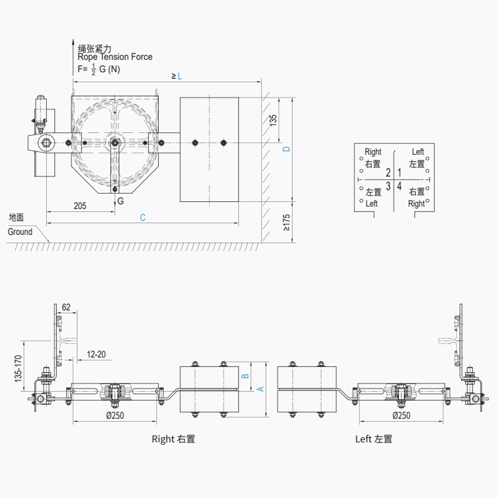
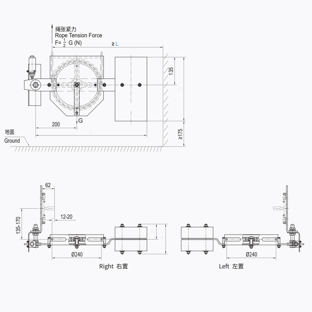
LTD02 elevator tensioning device adopts a swing arm structure and realizes automatic tensioning of the wire rope through a counterweight block. It has the advantages of compact structure, easy operation and convenient maintenance. LTD02 swing-arm tensioner also features good adaptability and adjustability. Its counterweight can be adjusted to suit the specific needs of the elevator and to accommodate different types of guide rails and wire rope specifications.
Understanding Elevator Wire Rope Brakes Elevators are indispensable vertical transportation tools in modern buildings, and their safety has always been a crucial consideration in design and operation....
READ MOREUnderstanding Elevator Wire Rope Brakes: The Final Safety Frontier In the complex ecosystem of elevator safety systems, elevator wire rope brakes represent a critical redundancy mechanism that provide...
READ MOREThe Unsung Heroes of Vertical Transportation When we step into an elevator, we engage in an act of profound trust. We trust that the cab will move smoothly, that the doors will open at the correct flo...
READ MOREIntroduction: The Importance of Elevator Tension Device Parts Elevator systems are critical components in modern buildings, ensuring the safe and efficient vertical transportation of people and goods....
READ MORE